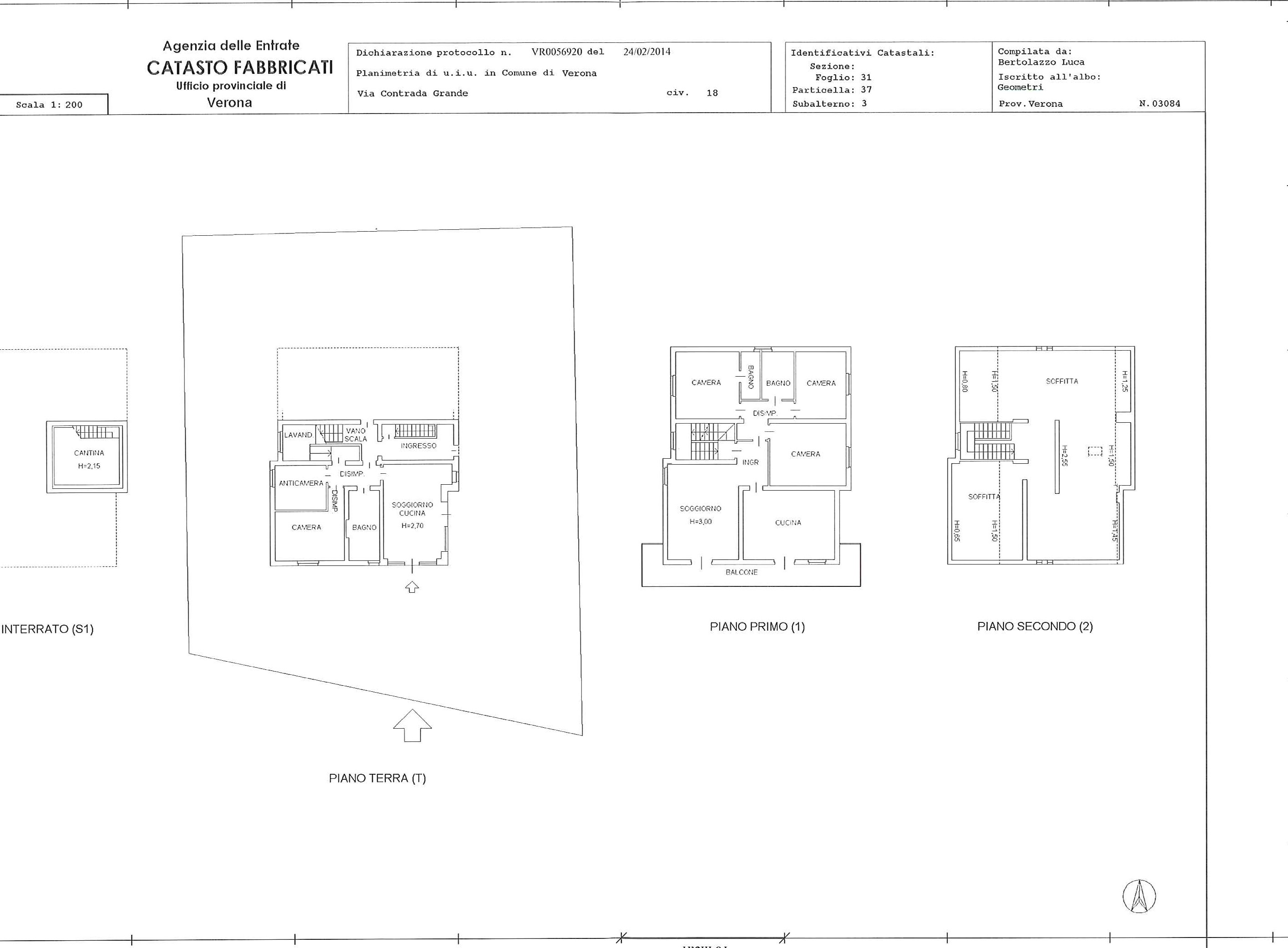
Nella frazione Marzana di Verona, in zona residenziale verde e tranquilla, comoda ai servizi ed ai mezzi di trasporto pubblici, si vende Villa Singola, edificata su un lotto di circa 600 mq. Data la conformazione, la casa offre anche la possibilità di accogliere due nuclei familiari in modo distinto e autonomo ma al tempo stesso mantenendo il pregio della facile comunicazione in caso di bisogno. La composizione del piano terra presenta un soggiorno con cucina a vista, una camera matrimoniale, una cameretta, due bagni di cui uno adatto anche ad uso lavanderia, il tutto completamente ristrutturato a nuovo con finiture di pregio, impiantistica di qualità, riscaldamento a pavimento, climatizzazione canalizzata, serramenti nuovi , tapparelle elettriche, isolamento termico interno ai muri perimetrali. Al primo piano, con accesso indipendente da vano scale interno, troviamo un appartamento di circa 125 mq con ampi spazi abitativi, ristrutturato nel 2006 e composto da ingresso, grande cucina abitabile con soggiorno, sala di generose dimensioni, camera matrimoniale con bagno en suite finestrato con doccia, seconda camera matrimoniale, terza camera singola di medie dimensioni, bagno principale finestrato con vasca. La facciata della casa è orientata a sud e presenta un lungo balcone che la incornicia. La casa ha una soffitta pavimentata raggiungibile con comoda scala pavimentata di uguale metratura dell'appartamento sottostante con buone altezze interne utilizzabile per molteplici usi. Presente inoltre a piano terra un ampio garage di circa 43 mq, con comodo accesso e basculante motorizzata e cantina al piano interrato di circa 15 mq. Il giardino circonda la casa in tutti i quattro lati con accesso carraio dalla via pubblica con cancello elettrico. Ideale anche per chi ha necessità di due unità indipendenti nella stessa struttura o per utilizzare il piano terra come spazio studio con sopra abitazione.